Запитує Svitlana
Запитання №83
Питання віднесено до категорії - Планування
Тема - Планировка "сталинки"
Запитання платне
Тема - Планировка "сталинки"
Запитання платне
Загальне запитання
Доброго дня.
Ви відповіли на моє запитання №80 і запропонували два варіанти перепланування.
Я вирішила, що для мене важливо, щоб вікна спальні виходили не на магістраль. Тому я обираю варіант 2.
Хочу замовити корегування варіанта 2. Є такі зауваження:
1. Перегородку між кухнею і кімнатою, яка криво стоїть, зносити не буду, тому треба малювати її, як вона є.
2. Там, де зараз дитяче ліжко, я хочу вигородити господарську комору. Тм буде пральна машина, швабра.
3. Біля ліжка - великий комод і робоче місце. Телевізора не буде, напроти ліжка - велика вбудована шафа.
4. Диван хочу прямий (не кутовий). Біля великого стола буде стелаж.
Фото інтер'єрів, які мені подобаються.
Ви відповіли на моє запитання №80 і запропонували два варіанти перепланування.
Я вирішила, що для мене важливо, щоб вікна спальні виходили не на магістраль. Тому я обираю варіант 2.
Хочу замовити корегування варіанта 2. Є такі зауваження:
1. Перегородку між кухнею і кімнатою, яка криво стоїть, зносити не буду, тому треба малювати її, як вона є.
2. Там, де зараз дитяче ліжко, я хочу вигородити господарську комору. Тм буде пральна машина, швабра.
3. Біля ліжка - великий комод і робоче місце. Телевізора не буде, напроти ліжка - велика вбудована шафа.
4. Диван хочу прямий (не кутовий). Біля великого стола буде стелаж.
Фото інтер'єрів, які мені подобаються.
Коментарі до малюнків
На третьому фото на стелі цікаві світильники, хочу такі в великій кімнаті і в коридорі.
| Відповідає Спеціаліст Марія Вауліна |
Портфоліо
|
Відповіді
|
Загальна відповідь
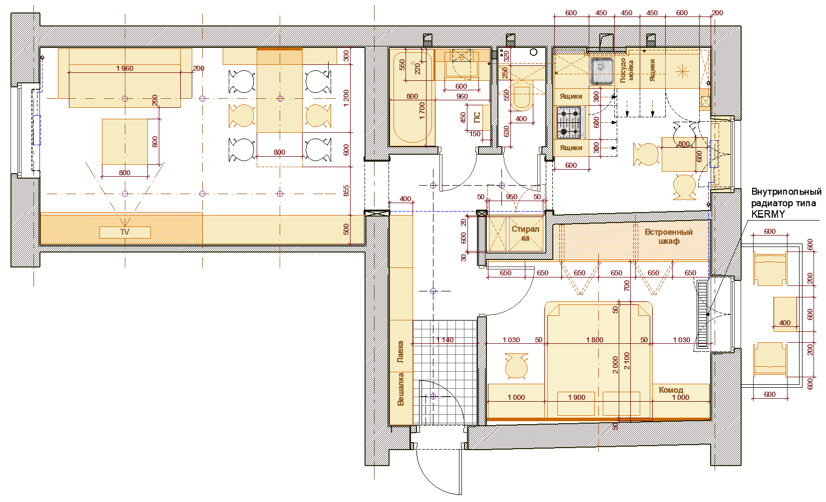
Корегування перепланування з урахуванням всіх зауважень.
Місцеположення світильників показано на плані.
Місцеположення світильників показано на плані.
Оцінка відповіді:
Оцінка відповіді - 5
Відгук
Все так як говорили, класно, дякую!
Увійдіть до системи
comments powered by Disqus



Портфоліо