Запитує Svitlana
Запитання №80
Питання віднесено до категорії - Планування
Тема - Перепланировка "сталинки"
Запитання платне
Тема - Перепланировка "сталинки"
Запитання платне
Загальне запитання
До запитань 78 і 79 хочу замовити перепланування.
Дуже подобаються відкриті інтер'єри, тому хотілося би об'єднати кухню з маленькою кімнатою, зробити студію. Але тоді спальня буде у великій кімнаті, а це не зовсім доцільно. До того ж вікна великої кімнатиі виходять на шумну вулицю, а вікна маленької кімнати у тихий двір.
Порадьте, як краще зробити.
Дуже подобаються відкриті інтер'єри, тому хотілося би об'єднати кухню з маленькою кімнатою, зробити студію. Але тоді спальня буде у великій кімнаті, а це не зовсім доцільно. До того ж вікна великої кімнатиі виходять на шумну вулицю, а вікна маленької кімнати у тихий двір.
Порадьте, як краще зробити.
| Уточнення до запитання |
Згорнути
|
Запит уточнення
Вкажіть:
- склад Вашої сім'ї, чи є діти;
- побажання по обладнанню у ванній кімнаті;
- побажання по обладнанню у кухні;
- побажання по меблям (ширина ліжка, письмовий стол, кутовий чи прямий диван, тощо)
- склад Вашої сім'ї, чи є діти;
- побажання по обладнанню у ванній кімнаті;
- побажання по обладнанню у кухні;
- побажання по меблям (ширина ліжка, письмовий стол, кутовий чи прямий диван, тощо)
Уточнення до запитання
1. Сім'я - чоловік і дружина, діти - в перспективі.
2. В ванній кімнаті - ванна, нормальний умивальник; в туалеті - звичайний унітаз. Робити поєднаний санвузол не потрібно.
3. Мийка (якщо вийде, то на 2 чаші з сушкою), варочна поверхня, духовка, невелика посудомийка, вбудований холодильник, витяжка.
4. Ліжко 1,80 ширина, диван - кутовий (але не обов'язково), потрібне робоче місце.
2. В ванній кімнаті - ванна, нормальний умивальник; в туалеті - звичайний унітаз. Робити поєднаний санвузол не потрібно.
3. Мийка (якщо вийде, то на 2 чаші з сушкою), варочна поверхня, духовка, невелика посудомийка, вбудований холодильник, витяжка.
4. Ліжко 1,80 ширина, диван - кутовий (але не обов'язково), потрібне робоче місце.
| Відповідає Спеціаліст Марія Вауліна |
Портфоліо
|
Відповіді
|
Загальна відповідь
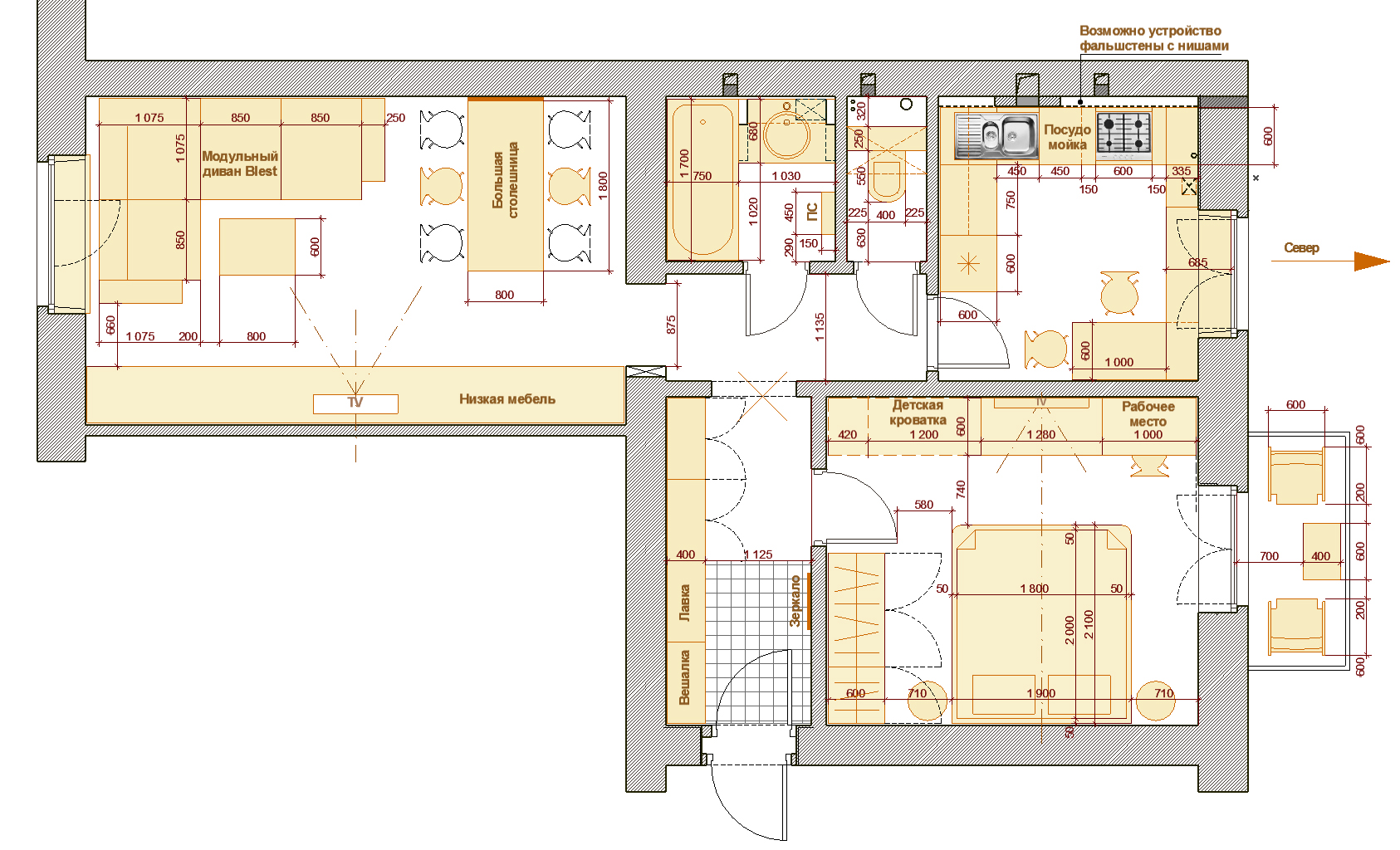
Пропонуються 2 варіанти перепланування.
1. Спроба зробити загальний простір "кухня-вітальня".
Через газове обладнання в кухні не можна зносити перегородку, треба робити дверний проріз з розсувними дверима. Вітальна відділена від передпокою стінкою, дверей нема. У спальні є велике ліжко та робочий стіл. Є місце для дитячого ліжечка та пеленального столика. В об’ємі спальні можна зробити комору і встановити пральну машину.
«+» варіанта:
- зручне розміщення меблів у кухні, великий робочий фронт;
- розділення загальної і спальної зони, зручний зв’язок «спальня-санвузол»;
- можливість влаштування комори;
- відкритий простір «передпокій-вітальня»;
«-» варіанта:
- проблеми з узаконюванням перепланування;
- вікна спальні орієнтовані на шумну, загазовану магістраль.
2. Залишаєм все, як є (переміщаємо тільки дверні прорізи).
«+» варіанта:
- не треба узаконювати перепланування;
- вікна спальні орієнтовани в тихий двір;
- велика площа вітальні дає можливість влаштувати повноцінну зону їдальні;
«-» варіанта:
- невелика робоча зона кухні, проблеми з розміщенням обладнання;
- немає комор, невелика зона зберігання;
- комунікація «кухня-їдальня» мимо санвузлів, санвузол біля входу до кухні;
- довгий, вузький коридор.
Треба вирішити, які моменти для Вас вирішальні і визначитися з варіантом перепланування.
1. Спроба зробити загальний простір "кухня-вітальня".
Через газове обладнання в кухні не можна зносити перегородку, треба робити дверний проріз з розсувними дверима. Вітальна відділена від передпокою стінкою, дверей нема. У спальні є велике ліжко та робочий стіл. Є місце для дитячого ліжечка та пеленального столика. В об’ємі спальні можна зробити комору і встановити пральну машину.
«+» варіанта:
- зручне розміщення меблів у кухні, великий робочий фронт;
- розділення загальної і спальної зони, зручний зв’язок «спальня-санвузол»;
- можливість влаштування комори;
- відкритий простір «передпокій-вітальня»;
«-» варіанта:
- проблеми з узаконюванням перепланування;
- вікна спальні орієнтовані на шумну, загазовану магістраль.
2. Залишаєм все, як є (переміщаємо тільки дверні прорізи).
«+» варіанта:
- не треба узаконювати перепланування;
- вікна спальні орієнтовани в тихий двір;
- велика площа вітальні дає можливість влаштувати повноцінну зону їдальні;
«-» варіанта:
- невелика робоча зона кухні, проблеми з розміщенням обладнання;
- немає комор, невелика зона зберігання;
- комунікація «кухня-їдальня» мимо санвузлів, санвузол біля входу до кухні;
- довгий, вузький коридор.
Треба вирішити, які моменти для Вас вирішальні і визначитися з варіантом перепланування.
Пояснення до креслень
Креслення №1. Варіант перепланування 1.
Креслення №2. Варіант перепланування 2.
Креслення №2. Варіант перепланування 2.
Оцінка відповіді:
Оцінка відповіді - 5
Відгук
Дякую.
Увійдіть до системи
comments powered by Disqus
Портфоліо
