Запитує Svitlana
Запитання №79
Питання віднесено до категорії - Планування
Тема - Обмерный чертёж
Запитання платне
Тема - Обмерный чертёж
Запитання платне
Загальне запитання
У продовження запитання №78.
Хочу замовити креслення за результатами обмірів квартири.
Дякую.
Хочу замовити креслення за результатами обмірів квартири.
Дякую.
| Відповідає Спеціаліст Марія Вауліна |
Портфоліо
|
Відповіді
|
Загальна відповідь
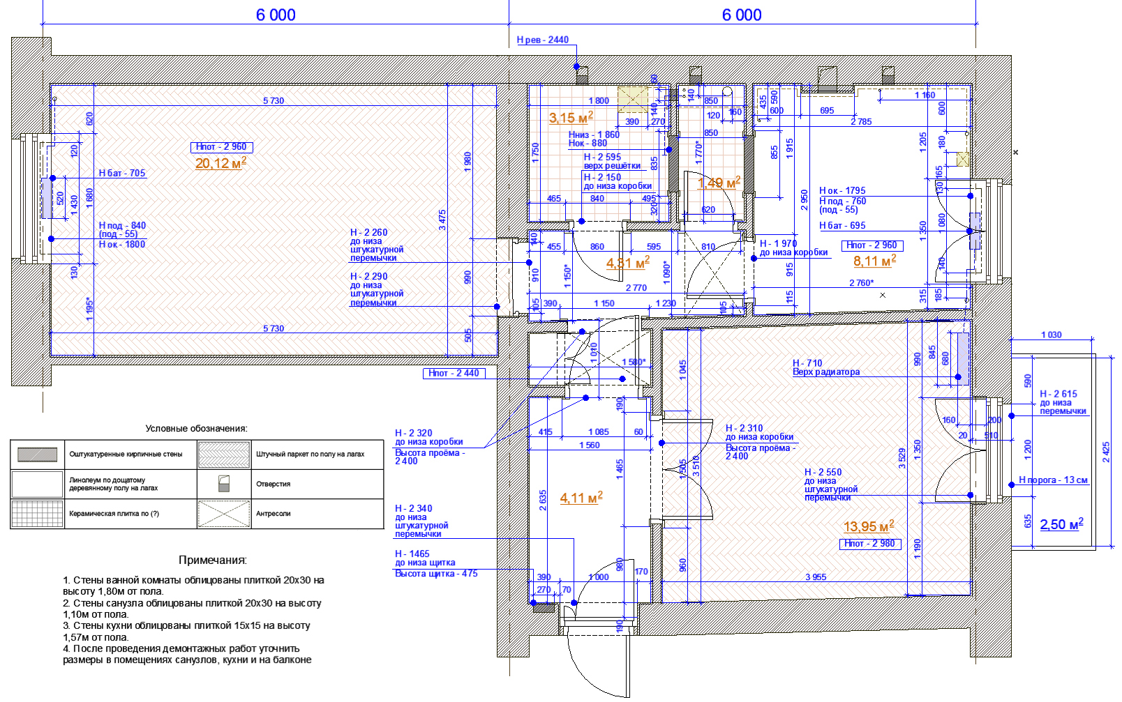
Креслення виконане за результатами обмірів Вашої квартири.
Маємо "завалену" перегородку між кухнею і кімнатою. Треба вирішити, чи залишати її, чи розбирати і монтувати нову перегородку.
У ванній кімнаті є газовий водонагрівач (колонка), а в кухні - газова плита: це накладає деякі обмеження на перепланування.
У кухні є діючий сміттєпровід: треба визначитись, чи плануєте Ви їм користуватися. Рекомендую заварити, звукоізолювати і "зашити" сміттєпровід, бо єксплуатація - це неприємний запах, гуркіт сміття, таргани :(
Ви можете висловити свої побажання щодо перепланування і замовити креслення з розташуванням меблів в окремому запитанні.
Маємо "завалену" перегородку між кухнею і кімнатою. Треба вирішити, чи залишати її, чи розбирати і монтувати нову перегородку.
У ванній кімнаті є газовий водонагрівач (колонка), а в кухні - газова плита: це накладає деякі обмеження на перепланування.
У кухні є діючий сміттєпровід: треба визначитись, чи плануєте Ви їм користуватися. Рекомендую заварити, звукоізолювати і "зашити" сміттєпровід, бо єксплуатація - це неприємний запах, гуркіт сміття, таргани :(
Ви можете висловити свої побажання щодо перепланування і замовити креслення з розташуванням меблів в окремому запитанні.
Пояснення до креслень
1. Обмірні креслення.
2. Фотофіксація санузла і ванної кімнати (колонка, димохід, стояки, вентиляційні грати).
3. Фотофіксація кухні (газова плита, газовий лічильник, труби опалення).
2. Фотофіксація санузла і ванної кімнати (колонка, димохід, стояки, вентиляційні грати).
3. Фотофіксація кухні (газова плита, газовий лічильник, труби опалення).
Оцінка відповіді:
Оцінка відповіді - 5
Увійдіть до системи
comments powered by Disqus
Портфоліо

