Запитує Андрей
Запитання №66
Питання віднесено до категорії - Планування
Тема - Детские комнаты "на вырост"
Запитання платне
Тема - Детские комнаты "на вырост"
Запитання платне
Загальне запитання
Мария, добрый вечер! Помогите, пожалуйста, с детскими. Две дочери - 8 и 4 года. Пока планирую, что они какое-то время (3-5 лет) будут жить в детской 1, потом младшая "переселится" в детскую 2. Уже сейчас хотелось бы понимать расстаноку мебели в 2-х комнатах. Желательно, чтобы после "переселения" сохранился интерьер (когда уберем одну кровать с детской 1). Если в других помещениях я понимаю в общих чертах какая мебель нужна, то с детскими - тяжело выбрать "правильные" кровати, столы, шкафы, учитывая, что дети растут. Наверное есть универсальные решения. Помогите, пожалуйста.
| Уточнення до запитання |
Згорнути
|
Запит уточнення
Есть вопросы:
1.Не занимается ли старшая девочка музыкой или спортом, или чем-то ещё, что нужно учесть при проектировании ( зеркальная стена с балетным станком или рояль :)
2. Предлагаю в детской 2 сделать спортивный уголок (шведская стенка с турником).
1.Не занимается ли старшая девочка музыкой или спортом, или чем-то ещё, что нужно учесть при проектировании ( зеркальная стена с балетным станком или рояль :)
2. Предлагаю в детской 2 сделать спортивный уголок (шведская стенка с турником).
Уточнення до запитання
1. Старшая занимается рисованием, плаваньем. Музыка и балет не планируется.
2. Отличная идея!
2. Отличная идея!
| Відповідає Спеціаліст Марія Вауліна |
Портфоліо
|
Відповіді
|
Загальна відповідь
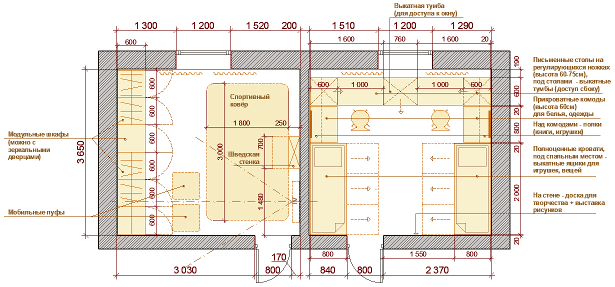
Пока девочки живут вместе, предлагается такое назначение комнат:
комната 1 – детская для двоих; комната 2 – гардеробная + спортивный уголок + игровая.
Для каждой девочки предлагается одинаковый комплект мебели: кровать, комод (над комодом – книжные полки, можно зеркало), большой письменный стол (под столом – выкатная тумба). Между столами – выкатная тумба с общими принадлежностями. На свободном простенке возле двери можно устроить «уголок для творчества» - большая грифельная доска, рулон флизелиновых обоев для рисования на стене и т.д.
Т.к. дети растут быстро, предлагается всю мебель делать «взрослой» - полноценные кровати, комоды, столы.
Для того, чтобы регулировать по высоте столы, нужно использовать регулирующиеся ножки (60 – 75см). Стулья также следует подобрать с регулировкой высоты сидения.
Кровать для 4ёх-летней девочки тоже может быть взрослой - 80х200см. Для того, чтобы ребёнок не «скатился» можно предусмотреть съёмную боковину (высота от спального места – 20см). Под спальным местом в кроватях рекомендуется предусмотреть вместительные выкатные ящики для игрушек и вещей.
Во второй комнате находятся четыре модульных шкафа для одежды, шведская стенка, большой спортивный ковёр и мобильные пуфы. Если родители не против, то на стене можно повесить ТВ
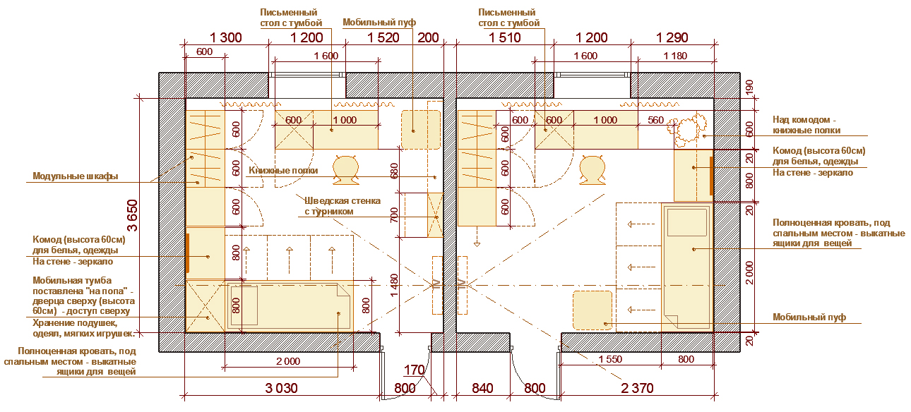
Через некоторое время младшая девочка переедет в комнату 2, а старшая – останется в комнате 1.
После переезда вся мебель сохраняется и ничего нового покупать не нужно. Для каждой девочки предусмотрен стол с тумбой, модульный шкаф, комод с зеркалом, книжные полки. Если родители не против, то в каждой комнате можно предусмотреть ТВ.
Для детской 2 - выкатная тумба, которая разделяла столы в общей детской «поворачивается» на бок и превращается в ящик для подушек, одеял или мягких игрушек (обычно армия подаренных добрыми родственниками зайцев и медведей стоит на шкафах и пылится, а выбросить рука не поднимается:).
Мебель рекомендуется делать «под заказ».
После общих замечаний (нужны ли ТВ или дополнительные компьютерные столы), можно проработать чертежи более детально.
комната 1 – детская для двоих; комната 2 – гардеробная + спортивный уголок + игровая.
Для каждой девочки предлагается одинаковый комплект мебели: кровать, комод (над комодом – книжные полки, можно зеркало), большой письменный стол (под столом – выкатная тумба). Между столами – выкатная тумба с общими принадлежностями. На свободном простенке возле двери можно устроить «уголок для творчества» - большая грифельная доска, рулон флизелиновых обоев для рисования на стене и т.д.
Т.к. дети растут быстро, предлагается всю мебель делать «взрослой» - полноценные кровати, комоды, столы.
Для того, чтобы регулировать по высоте столы, нужно использовать регулирующиеся ножки (60 – 75см). Стулья также следует подобрать с регулировкой высоты сидения.
Кровать для 4ёх-летней девочки тоже может быть взрослой - 80х200см. Для того, чтобы ребёнок не «скатился» можно предусмотреть съёмную боковину (высота от спального места – 20см). Под спальным местом в кроватях рекомендуется предусмотреть вместительные выкатные ящики для игрушек и вещей.
Во второй комнате находятся четыре модульных шкафа для одежды, шведская стенка, большой спортивный ковёр и мобильные пуфы. Если родители не против, то на стене можно повесить ТВ
Через некоторое время младшая девочка переедет в комнату 2, а старшая – останется в комнате 1.
После переезда вся мебель сохраняется и ничего нового покупать не нужно. Для каждой девочки предусмотрен стол с тумбой, модульный шкаф, комод с зеркалом, книжные полки. Если родители не против, то в каждой комнате можно предусмотреть ТВ.
Для детской 2 - выкатная тумба, которая разделяла столы в общей детской «поворачивается» на бок и превращается в ящик для подушек, одеял или мягких игрушек (обычно армия подаренных добрыми родственниками зайцев и медведей стоит на шкафах и пылится, а выбросить рука не поднимается:).
Мебель рекомендуется делать «под заказ».
После общих замечаний (нужны ли ТВ или дополнительные компьютерные столы), можно проработать чертежи более детально.
Пояснення до креслень
На чертеже 1 - вариант размещения мебели, когда девочки живут вместе;
На чертеже 2 - вариант размещения мебели, когда девочки будут жить в разных комнатах;
На рисунке 3 – фото «взрослой», но очень бюджетной кровати 3-х летнего ребенка, сделанной «под заказ» по моим чертежам. Корпус – обычная ДСП + недорогие рейлинговые ручки+ колёсики. Бортик (защита от падения) сделан из обычных (очень недорогих) мебельных труб (2 поворотных + 1прямая), купленных в «мебельной фурнитуре» и обёрнутых куском параллона в наволочке.
Также Вам может пригодиться идея выкатного ящика-тумбы: 2 функции – прикроватная тумба + место для сидения рядом с изголовьем (почитать книжку на ночь).
На чертеже 2 - вариант размещения мебели, когда девочки будут жить в разных комнатах;
На рисунке 3 – фото «взрослой», но очень бюджетной кровати 3-х летнего ребенка, сделанной «под заказ» по моим чертежам. Корпус – обычная ДСП + недорогие рейлинговые ручки+ колёсики. Бортик (защита от падения) сделан из обычных (очень недорогих) мебельных труб (2 поворотных + 1прямая), купленных в «мебельной фурнитуре» и обёрнутых куском параллона в наволочке.
Также Вам может пригодиться идея выкатного ящика-тумбы: 2 функции – прикроватная тумба + место для сидения рядом с изголовьем (почитать книжку на ночь).
Оцінка відповіді:
Оцінка відповіді - 5
Відгук
Мария, спасибо! Сам бы точно не догадался). Отличная идея с кроватью. Надеюсь, продолжим работу с сентября. Есть 3 вопроса: 1) можно ли где-то посмотреть как выглядят выкатные тумбы под столом с доступом сбоку? Не очень представляю как это. 2) На какой высоте лучше вешать телевизор? 3) На сколько удобно/неудобно будет, если двери будут откраваться внутрь (в коридоре правее от проема 1 комнаты на 20 см начинается лестница). Спасибо!
Увійдіть до системи
comments powered by Disqus

Портфоліо

