Запитує Максим
Запитання №63
Питання віднесено до категорії - Електрика
Тема - Схема размещения электроточек
Запитання платне
Тема - Схема размещения электроточек
Запитання платне
Загальне запитання
Добрый день. Прошу Вас разработать план размещение электроточек. А также доработать планирововчное решение с учетом наших пожеланий (второй вариант планировки).
Спасибо.
Спасибо.
| Уточнення до запитання |
Згорнути
|
Запит уточнення
Вопросы:
1. Телевизор на кухне будет?
2. Предусмотреть в зале дублирующий блок розеток для ТВ и другой техники на стене, противоположной эркеру (если захочется потом перенести?)
1. Телевизор на кухне будет?
2. Предусмотреть в зале дублирующий блок розеток для ТВ и другой техники на стене, противоположной эркеру (если захочется потом перенести?)
Уточнення до запитання
1. Да.
2. Да. Розеток много не бывает :)
2. Да. Розеток много не бывает :)
| Відповідає Спеціаліст Марія Вауліна |
Портфоліо
|
Відповіді
|
Загальна відповідь
Постаралась предусмотреть все нюансы.
Возможно, есть лишние электроточки и можно где-то сэкономить.
Полотенцесушители в санузлах можно предусмотреть от котла.
Возможно, есть лишние электроточки и можно где-то сэкономить.
Полотенцесушители в санузлах можно предусмотреть от котла.
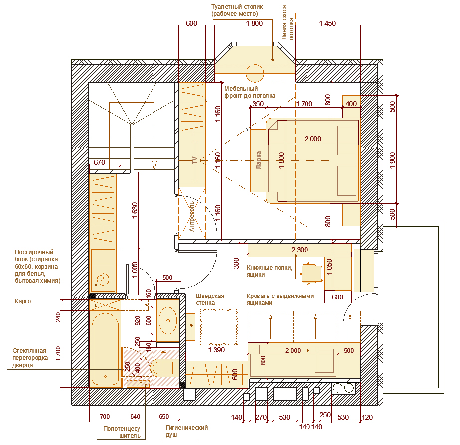
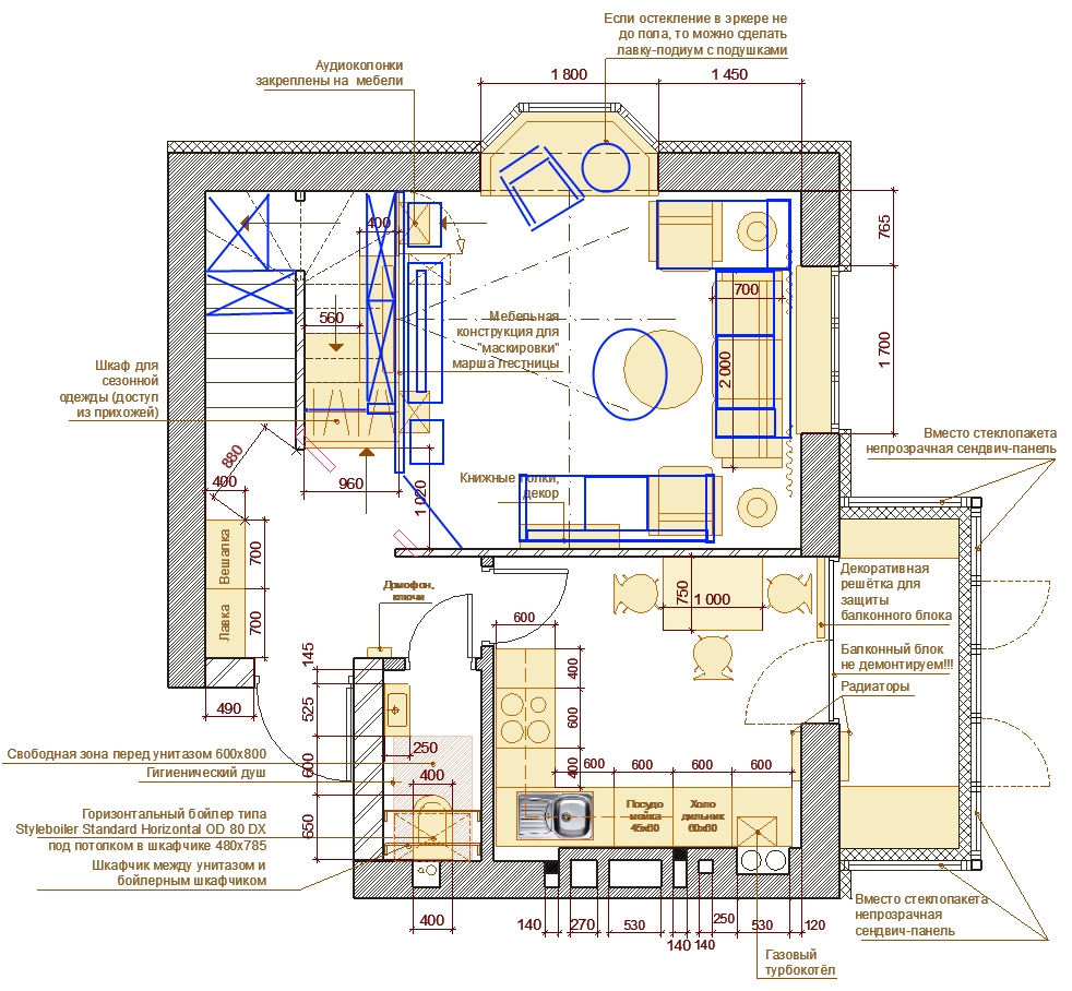
Пояснення до креслень
1. План размещения электроточек на первом уровне квартиры.
2. План размещения электроточек на втором уровне квартиры.
2. План размещения электроточек на втором уровне квартиры.
Оцінка відповіді:
Оцінка відповіді - 5
Відгук
Спасибо. Работа выполнена в кратчайшие сроки и качественно.
Увійдіть до системи
comments powered by Disqus


Портфоліо
