Запитує Lweno4ek
Запитання №49
Питання віднесено до категорії - Планування
Тема - Улучшение планировки
Запитання безкоштовне
Відповідь на запитання очікує оцінку
Тема - Улучшение планировки
Запитання безкоштовне
Відповідь на запитання очікує оцінку
Публікується зі згоди автора, який поставив запитання на форумі
"Строим Дом"
Загальне запитання
Потребую вашої допомоги.
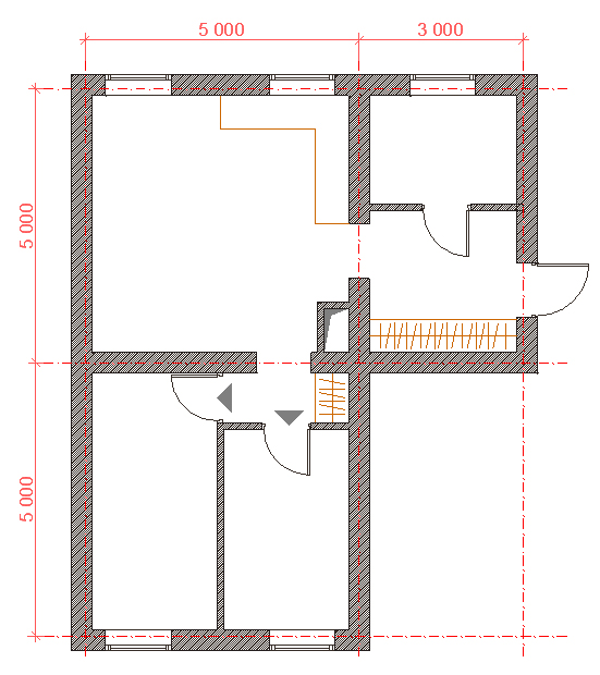
В квартирі є 2 великі кімнати 5х5, одна прохідна.
Думаю, як краще поділити:
вариант 1 - з прохідної кімнати зробити дужу кухню-ідальню-вітальню, а другу поділити на 2 спальні 2.5х5 Але треба робити двері в капітальній стіні.
вариант 2 - з прохідної зробити спальню 5х3 і прохідну кухню 5х2, а з другої - вітальню.
Жити буду там сам.
В квартирі є 2 великі кімнати 5х5, одна прохідна.
Думаю, як краще поділити:
вариант 1 - з прохідної кімнати зробити дужу кухню-ідальню-вітальню, а другу поділити на 2 спальні 2.5х5 Але треба робити двері в капітальній стіні.
вариант 2 - з прохідної зробити спальню 5х3 і прохідну кухню 5х2, а з другої - вітальню.
Жити буду там сам.
Коментарі до малюнків
Грубі лінії - несучі стіни. Посередині - труби.
Зправа кородор і ванна з вікном, Зліва 2 дужі кімнати.
Зправа кородор і ванна з вікном, Зліва 2 дужі кімнати.
| Відповідає Спеціаліст Марія Вауліна |
Портфоліо
|
Відповіді
|
Загальна відповідь
Перший варіант особисто мені подобається більше. Можна не робити двері в капітальній стіні – пропоную влаштувати невеличкий тамбур перед спальними кімнатами. Є мінус – спальні дуже вузькі – проблема помістити двоспальне ліжко.
Пропоную Вам задати нове питання, в якому буде вказано більше розмірів існуючої ситуації та побажання, щодо меблів. Тоді можна буде проробити план більш детально.
Пропоную Вам задати нове питання, в якому буде вказано більше розмірів існуючої ситуації та побажання, щодо меблів. Тоді можна буде проробити план більш детально.
Увійдіть до системи
comments powered by Disqus

Портфоліо