Запитує Sergey
Запитання №47
Питання віднесено до категорії - Планування
Тема - Перепланировка "двушки" в "новострое"
Запитання безкоштовне
Тема - Перепланировка "двушки" в "новострое"
Запитання безкоштовне
Публікується зі згоди автора, який поставив запитання на форумі
"Строим Дом"
Загальне запитання
Помогите, пожалуйста, с идеями для перепланировки квартиры в новострое.
В данной планировке под спальню можно отвести малую комнату (14,5 м). Но в таком случае спальня получается сразу напротив входа в квартиру, что считаем не очень удобным. Если же менять местами, то 14,5 для гостинной будет маловато (при том, что спальня будет почти 19 м).
Были идеи объединить кухню со смежной малой комнатой (заложив вход на кухню и демонтировав стену (либо ее часть) между комнатой и кухней) и сделать некую кухню-гостинную. С учетом заложенного входа можно было бы сделать П-образную кухонную зону. Однако есть ли смысл? Что посоветуете?
Также не нравится узкая и длинная ванная комната.
Квартира для семьи из 2-х человек с последующим пополнением.
В данной планировке под спальню можно отвести малую комнату (14,5 м). Но в таком случае спальня получается сразу напротив входа в квартиру, что считаем не очень удобным. Если же менять местами, то 14,5 для гостинной будет маловато (при том, что спальня будет почти 19 м).
Были идеи объединить кухню со смежной малой комнатой (заложив вход на кухню и демонтировав стену (либо ее часть) между комнатой и кухней) и сделать некую кухню-гостинную. С учетом заложенного входа можно было бы сделать П-образную кухонную зону. Однако есть ли смысл? Что посоветуете?
Также не нравится узкая и длинная ванная комната.
Квартира для семьи из 2-х человек с последующим пополнением.
Коментарі до малюнків
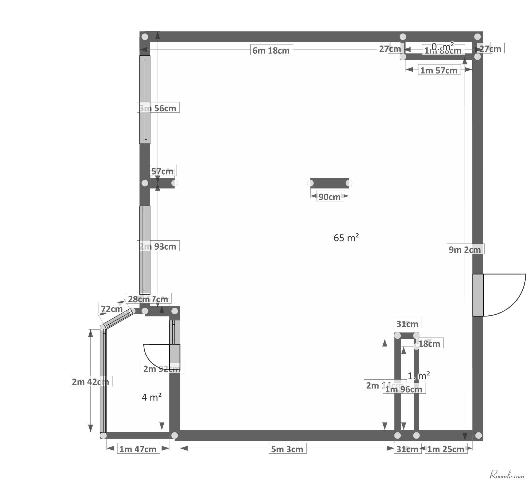
Во вложении план квартиры: (1) с планировкой, предлагаемой застройщиком, и уже возведенными стенами, (2) без стен с отмеченными ж/б пилонами и сантехшахтами.
По площадям:
1. маленькая комната - 13,5 м2
2. большая комната - 18,9 м2
3. кухня - 13.75 м2
4. холл - 9.5 м2
5. ванная комната - 4.4 м2
6. туалет - 1.94 м2
7. лоджия - 3.4 м2 (хотим оставить как есть)
По площадям:
1. маленькая комната - 13,5 м2
2. большая комната - 18,9 м2
3. кухня - 13.75 м2
4. холл - 9.5 м2
5. ванная комната - 4.4 м2
6. туалет - 1.94 м2
7. лоджия - 3.4 м2 (хотим оставить как есть)
| Уточнення до запитання |
Згорнути
|
Запит уточнення
Подскажите, в ванной комнате есть канализационный стояк d100мм для унитаза? Или по проекту унитаз с умывальником - в малом санузле, а в ванной комнате только ванная и умывальник?
Уточнення до запитання
По проекту место для унитаза предусмотрено в малом санузле. Однако в ванной комнате канализационный стояк 100мм, к нему подведена труба 50мм. Но не ясно и пока нет возможности проверить, каким образом (через какое колено) 50-ка соединена со стояком, т.е. можно ли к стояку подвести трубу 100-ку либо только 50-ку.
| Відповідає Спеціаліст Марія Вауліна |
Портфоліо
|
Відповіді
|
Загальна відповідь
Вы напрасно считаете, что спальня должна занимать меньше места, чем гостиная. Двуспальная кровать и шкаф-купе самая габаритная мебель в квартире. Добавьте туда детскую кроватку, пеленальный столик, рабочее место – и Вы сразу передумаете переносить спальню в маленькую комнату.
В проекте немного уменьшена площадь спальни и площадь кухни за счёт устройства двух кладовых (увеличение подсобной площади допускается действующими нормами).
Новая планировка не будет считаться «самостроем», т.к. санузлы остались на проектном месте, лоджия не присоединена, стена между кухней и комнатой сохранена.
В проекте немного уменьшена площадь спальни и площадь кухни за счёт устройства двух кладовых (увеличение подсобной площади допускается действующими нормами).
Новая планировка не будет считаться «самостроем», т.к. санузлы остались на проектном месте, лоджия не присоединена, стена между кухней и комнатой сохранена.
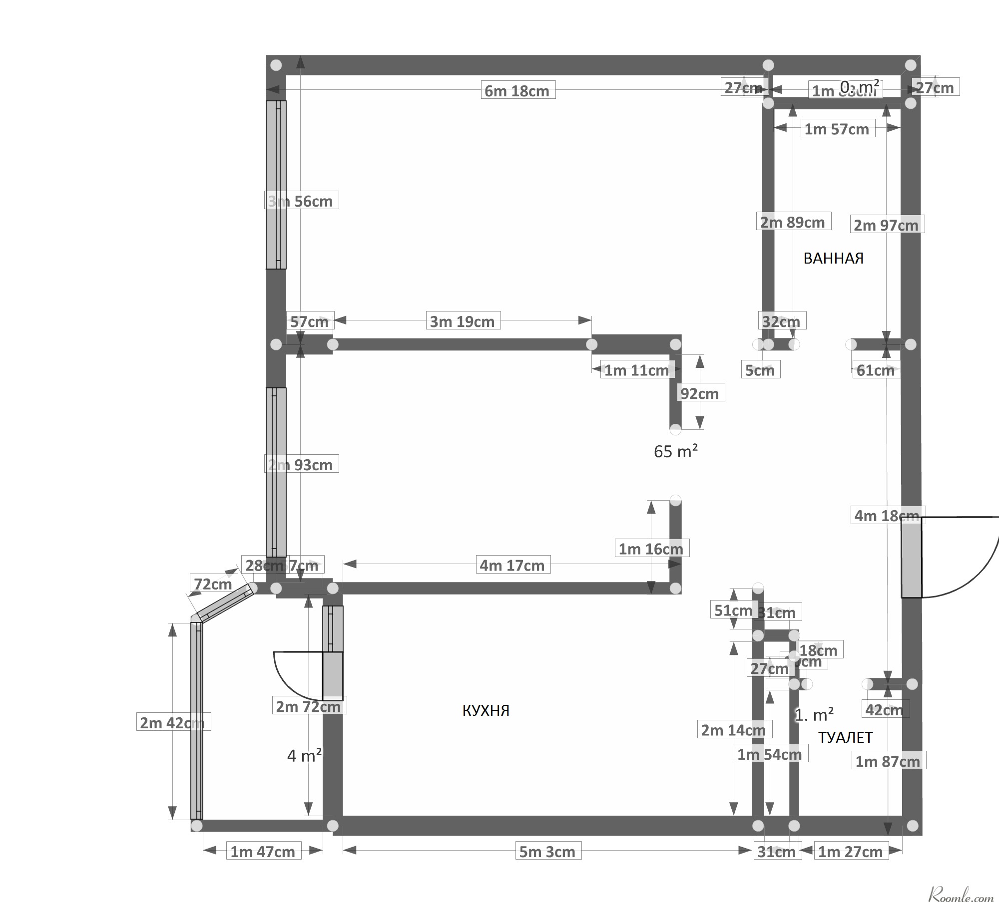
Пояснення до креслень
На чертеже 1 - план перепланировки с рекомендациями и пояснениями.
Оцінка відповіді:
Оцінка відповіді - 5
Відгук
Большое спасибо за предложение!!! Будем изучать данный вариант.
Увійдіть до системи
comments powered by Disqus


Портфоліо