Запитує Владимир
Запитання №105
Питання віднесено до категорії - Об'єм
Тема - Пристройка к дому
Запитання безкоштовне
Тема - Пристройка к дому
Запитання безкоштовне
Загальне запитання
Планируется расширить пристройку к дому (см. рис. 1) для размещения в ней лестницы на 2-й и 3-й этаж:
- расширить фудамент пристройки до 2,9м;
- убрать фронтальную стену пристройки;
- убрать крышу пристройки;
- возвести стену пристройки толщиной в кирпич с закругленными углами (внешний R=1,25м);
- устроить крышу пристройки;
- устроить внутри пристройки лестницу так как изображено на рис. 3.
Вопрос: Нужно ли привязывать арматурой новую часть стены пристройки к старой части стены по всей высоте строения включая фундамент? Если такую привязку выполнять, тогда, в случае проседания новой части пристройки, не потянет ли она она за собой старую часть пристройки или стену дома?
С уважением, Владимир.
- расширить фудамент пристройки до 2,9м;
- убрать фронтальную стену пристройки;
- убрать крышу пристройки;
- возвести стену пристройки толщиной в кирпич с закругленными углами (внешний R=1,25м);
- устроить крышу пристройки;
- устроить внутри пристройки лестницу так как изображено на рис. 3.
Вопрос: Нужно ли привязывать арматурой новую часть стены пристройки к старой части стены по всей высоте строения включая фундамент? Если такую привязку выполнять, тогда, в случае проседания новой части пристройки, не потянет ли она она за собой старую часть пристройки или стену дома?
С уважением, Владимир.
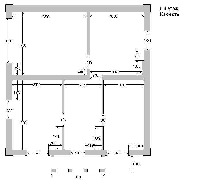
Коментарі до малюнків
Размеры существующей пристройки указаны на рис.2, размеры расширенной пристройки - на рис. 3. Стена дома толщиной в 1,5 кирпича. Перекрытия первого этажа (без учета пристройки) – ж/б панели. Перекрытия второго этажа (без учета пристройки) – деревянные балки 20*20 см обшитые сверху досками, потолок второго этажа - дранка. Перекрытия в пристройке – деревянные доски. Боковые стены существующей пристройки толщиной в кирпич, фронтальная стена пристройки толщиной в полкирпича. Фундамент дома глубиной 1,2м состоит из ж/б блоков 2,4*0,6*0,4м. Фундамент пристройки глубиной 1,2м монолитный толщиной 0,4м. Стены пристройки не перевязаны со стеной дома. Дому около 20 лет. Расположен в Киево-Святошинском районе Киевской области. Грунт – суглинок 2-3 метра в глубину, глубже - песок. Участок относительно ровный с небольшими буграми.
| Відповідає Спеціаліст Марія Вауліна |
Портфоліо
|
Відповіді
|
Загальна відповідь
Спасибо за грамотно поставленный вопрос.
Я , как архитектор, могу сказать, что между частями здания, возводимыми в разный период необходимо устраивать деформационный шов по всей высоте (отрезая стены, фундамент и крышу). Тогда просадка пристройки не вызовет деформаций в основном здании.
Но Вам обязательно нужно получить консультацию конструктора, т.к. в каждом конкретном случае могут быть разные варианты решения (необходимы расчёты).
Совет по архитектуре: не нужно делать закруглённые стены. Слишком маленький радиус для нормальной кладки + усложняется конструкция фундамента + усложняется форма крыши.
Будет проще и красивее сделать прямые стены и перекрыть двускатной крышей.
Вариант – закругления заменить на косые прямые участки (в местах забежных ступеней) – это визуально «облегчит» пристройку.
Я , как архитектор, могу сказать, что между частями здания, возводимыми в разный период необходимо устраивать деформационный шов по всей высоте (отрезая стены, фундамент и крышу). Тогда просадка пристройки не вызовет деформаций в основном здании.
Но Вам обязательно нужно получить консультацию конструктора, т.к. в каждом конкретном случае могут быть разные варианты решения (необходимы расчёты).
Совет по архитектуре: не нужно делать закруглённые стены. Слишком маленький радиус для нормальной кладки + усложняется конструкция фундамента + усложняется форма крыши.
Будет проще и красивее сделать прямые стены и перекрыть двускатной крышей.
Вариант – закругления заменить на косые прямые участки (в местах забежных ступеней) – это визуально «облегчит» пристройку.
Оцінка відповіді:
Оцінка відповіді - 5
Відгук
Спасибо за подробный ответ. Заменить закругления на косые прямые участки - отличная идея!
Увійдіть до системи
comments powered by Disqus



Портфоліо