Запитує Алексей
Запитання №103
Питання віднесено до категорії - Планування
Тема - Планировка "Двушки"
Запитання платне
Тема - Планировка "Двушки"
Запитання платне
Загальне запитання
День добрый.
Приобрели 2-комнатную квартиру на этапе строительства. Дом кирпичный, в два кирпича. Хотелось бы на этапе внутренней отделки уже иметь проект или видение какое-то в плане планировки.
Семья из 3-х человек. Младшему – еще и года нет. Из хотелок:
1. Гардеробная.
2. Комната для мелкого.
3. Один балкон объединить с комнатой (кухней), а второй оставить под белье и кладовки.
4. Большое трюмо для жены (косметика – ее страсть!)
5. Гостиную видим примерно так:
- в эркере стоит небольшая пальмочка
- диван угловой с широкими подлокотниками
- большой телевизор на широкой подставке (см. №2)
- интересный вариант №3
Думали над вариантом, когда небольшая комната с балконом выделяется под спальню. На балконе размещается трюмо, а большая комната отдается ребенку. Правда, между детской и спальней делается гардеробная и вход в комнаты через нее. Жене не нравится такой вариант. Больше ничего не могу придумать.
Очень нужны идеи!) Буду признателен!
Приобрели 2-комнатную квартиру на этапе строительства. Дом кирпичный, в два кирпича. Хотелось бы на этапе внутренней отделки уже иметь проект или видение какое-то в плане планировки.
Семья из 3-х человек. Младшему – еще и года нет. Из хотелок:
1. Гардеробная.
2. Комната для мелкого.
3. Один балкон объединить с комнатой (кухней), а второй оставить под белье и кладовки.
4. Большое трюмо для жены (косметика – ее страсть!)
5. Гостиную видим примерно так:
- в эркере стоит небольшая пальмочка
- диван угловой с широкими подлокотниками
- большой телевизор на широкой подставке (см. №2)
- интересный вариант №3
Думали над вариантом, когда небольшая комната с балконом выделяется под спальню. На балконе размещается трюмо, а большая комната отдается ребенку. Правда, между детской и спальней делается гардеробная и вход в комнаты через нее. Жене не нравится такой вариант. Больше ничего не могу придумать.
Очень нужны идеи!) Буду признателен!
| Уточнення до запитання |
Згорнути
|
Запит уточнення
Т.к. в кухне-студии установлен котёл, то менять размеры и конфигурацию этого помещения - нежелательно.
Для того, чтобы воплотить в жизнь Вашу первую картинку – недостаточно ширины помещения (но можно попробовать).
Вторая картинка более перспективна, но «минусом» является возможность просмотра ТВ только с дивана (от рабочей зоны кухни и обеденного стола ТВ не виден). Вам подходит такой вариант?
По поводу планировки жилых помещений:
- очень нежелательно выделять комнату с балконом маленькому ребёнку (бесконтрольный доступ ребёнка на балкон опасен, необходимо ставить на выход защитную фурнитуру). Единственное оправдание размещению в этом помещении детской – это неблагоприятная ориентация по сторонам света другой комнаты. Т.е., чтобы принять правильное решение необходимо знать ориентацию квартиры по сторонам света (укажите, где Север).
- нужен ли в спальне ТВ?
- нужно ли в спальне рабочее место (столик и стул)?
Для того, чтобы воплотить в жизнь Вашу первую картинку – недостаточно ширины помещения (но можно попробовать).
Вторая картинка более перспективна, но «минусом» является возможность просмотра ТВ только с дивана (от рабочей зоны кухни и обеденного стола ТВ не виден). Вам подходит такой вариант?
По поводу планировки жилых помещений:
- очень нежелательно выделять комнату с балконом маленькому ребёнку (бесконтрольный доступ ребёнка на балкон опасен, необходимо ставить на выход защитную фурнитуру). Единственное оправдание размещению в этом помещении детской – это неблагоприятная ориентация по сторонам света другой комнаты. Т.е., чтобы принять правильное решение необходимо знать ориентацию квартиры по сторонам света (укажите, где Север).
- нужен ли в спальне ТВ?
- нужно ли в спальне рабочее место (столик и стул)?
Уточнення до запитання
По-поводу первой картинки. Может, просто диван сделать по-меньше и не угловой?. Нравится само расположение такое. Может, как-то поиграться с обеденным столом. Сделать его меньше, или выполнить его в виде стойки барной. Если в таком виде будет сильно в обрез по пространству и удобству, тогда без проблем можно рассмотреть вторую картинку. Просмотр телевизора с кухни – не в приоритете. Как и просмотр ТВ в спальне. Скорее всего, его там не будет.
Комнату с балконом думали сделать спальней, немного расширить площадь за счет балкона. Он достаточно большой. На балконе поставить трюмо жены и, с противоположной стороны, компьютерный столик. Сам проем думали завесить шторой или придумать что-то вроде ширмы, чтобы не мешать спящему. Жена категорична – спальню хочет не менее 15-ти квадратов. Но, думаю, при удачной компоновке пространства ее можно будет переубедить.
Еще вопрос в том, можно ли как-то увеличить площадь комнаты с балконом за счет большой комнаты с окном? Как это обыграть, чтобы был нормальный вход в большую комнату? Тогда бы ребенку досталась комната с окном, а мы бы немного увеличили площадь спальни.
В целом, главное для нас в интерьере и планировке – удобство пользования. Возможно даже в ущерб внешней стороны вопроса.
Комнату с балконом думали сделать спальней, немного расширить площадь за счет балкона. Он достаточно большой. На балконе поставить трюмо жены и, с противоположной стороны, компьютерный столик. Сам проем думали завесить шторой или придумать что-то вроде ширмы, чтобы не мешать спящему. Жена категорична – спальню хочет не менее 15-ти квадратов. Но, думаю, при удачной компоновке пространства ее можно будет переубедить.
Еще вопрос в том, можно ли как-то увеличить площадь комнаты с балконом за счет большой комнаты с окном? Как это обыграть, чтобы был нормальный вход в большую комнату? Тогда бы ребенку досталась комната с окном, а мы бы немного увеличили площадь спальни.
В целом, главное для нас в интерьере и планировке – удобство пользования. Возможно даже в ущерб внешней стороны вопроса.
| Відповідає Спеціаліст Марія Вауліна |
Портфоліо
|
Відповіді
|
Загальна відповідь
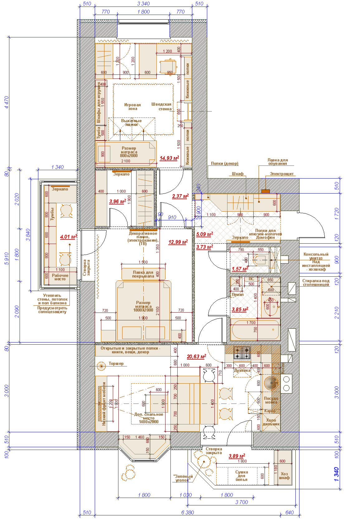
Предлагается 2 варианта перепланировки с размещением мебели. Разные элементы вариантов можно компоновать вместе, тогда получится «сводный» вариант. Например, гостиную из Варианта 1 можно скомпоновать со спальней и санузлом из Варианта 2.
Большая комната с окном хорошо инсолируется, поэтому в ней устраиваем детскую.
1 Вариант:
В гостиной повторяется идея Вашей первой картинки: ТВ – диван - обеденный стол. Поместился скромный прямой диван, поэтому в эркере предлагается поместить не пальму, а лавку, которая компенсирует отсутствие углового дивана.
Устройство гардеробной уменьшает жилую площадь квартиры, но повышает комфорт. Вход в гардеробную можно устроить из спальни (на чертеже) или из тамбура.
Вход в спальню можно устроить не из тамбура, а из коридора (дверь со светопрозрачным заполнением добавит свет в коридор).
Демонтаж балконного блока и факт объединения спальни с балконом нежелателен (грубое нарушение, считается «самостроем»). Предлагаю оставить балконные двери, балкон утеплить – и получить дополнительные метры жилой площади без нарушений. Наличие котла у Вас в квартире делает возможным отопление всех помещений квартиры (в т.ч. и летних).
2 Вариант:
В гостиной повторяется идея Вашей второй картинки: стойка с ТВ разделяет пространство кухни и гостиной. Такое размещение позволяет разместить большой угловой диван, а в эркер возвращается пальма. Можно ТВ на поворотной консоли поместить в простенке между эркером и балконом, тогда просмотр ТВ станет возможным из всех зон помещения.
В этом варианте увеличена коммуникационная зона, но прихожая становится более удобной для размещения шкафов.
Сан/узел увеличен за счёт ванной комнаты – это даёт возможность разместить рукомойник–мини (при необходимости).
Остальные пояснения смотрите на чертежах.
Анализ вариантов обязательно натолкнёт Вас на новые идеи и решения. Вариант №3 может быть выполнен на основе Ваших замечаний и предложений.
Большая комната с окном хорошо инсолируется, поэтому в ней устраиваем детскую.
1 Вариант:
В гостиной повторяется идея Вашей первой картинки: ТВ – диван - обеденный стол. Поместился скромный прямой диван, поэтому в эркере предлагается поместить не пальму, а лавку, которая компенсирует отсутствие углового дивана.
Устройство гардеробной уменьшает жилую площадь квартиры, но повышает комфорт. Вход в гардеробную можно устроить из спальни (на чертеже) или из тамбура.
Вход в спальню можно устроить не из тамбура, а из коридора (дверь со светопрозрачным заполнением добавит свет в коридор).
Демонтаж балконного блока и факт объединения спальни с балконом нежелателен (грубое нарушение, считается «самостроем»). Предлагаю оставить балконные двери, балкон утеплить – и получить дополнительные метры жилой площади без нарушений. Наличие котла у Вас в квартире делает возможным отопление всех помещений квартиры (в т.ч. и летних).
2 Вариант:
В гостиной повторяется идея Вашей второй картинки: стойка с ТВ разделяет пространство кухни и гостиной. Такое размещение позволяет разместить большой угловой диван, а в эркер возвращается пальма. Можно ТВ на поворотной консоли поместить в простенке между эркером и балконом, тогда просмотр ТВ станет возможным из всех зон помещения.
В этом варианте увеличена коммуникационная зона, но прихожая становится более удобной для размещения шкафов.
Сан/узел увеличен за счёт ванной комнаты – это даёт возможность разместить рукомойник–мини (при необходимости).
Остальные пояснения смотрите на чертежах.
Анализ вариантов обязательно натолкнёт Вас на новые идеи и решения. Вариант №3 может быть выполнен на основе Ваших замечаний и предложений.
Пояснення до креслень
Чертёж №1 - Вариант 1.
Чертёж №2 - Вариант 2.
Фото № 3. В прошлом году занималась квартирой из другой очереди Вашего ЖК. Если Ваш эркер выглядит также, как на фото, то лавка будет очень уместна. Главное подобрать нужный стиль и композиция «увяжется» и с современным диваном и с другими элементами интерьера.
Чертёж №2 - Вариант 2.
Фото № 3. В прошлом году занималась квартирой из другой очереди Вашего ЖК. Если Ваш эркер выглядит также, как на фото, то лавка будет очень уместна. Главное подобрать нужный стиль и композиция «увяжется» и с современным диваном и с другими элементами интерьера.
Оцінка відповіді:
Оцінка відповіді - 5
Увійдіть до системи
comments powered by Disqus



Портфоліо

